
Phối cảnh Liền kề tại Phân khu Cát Tường
Diện tích phân khu: Đang cập nhật
Mô hình phát triển: Phân khu mở
Quy mô phát triển: 1.548 căn nhà ở thấp tầng
Loại hình phát triển: Liền kề
Thời gian bàn giao: Năm 2025
Hình thức sở hữu: Sổ đỏ lâu dài
| Loại biệt thự | Diện tích đất | Mật độ xây dựng | Số tầng | Giá bán |
|---|---|---|---|---|
| Liền kề thường | 62.5 – 90 m2 | 84% | 5 tầng | 17 – 36 tỷ |
| Liền kề góc | 85.2 – 220.1 m2 | 70 – 80% | 5 tầng | 28 – 60 tỷ |
Lưu ý: Bảng giá trên là giá FULL (Đã bao gồm VAT + KPBT) và chưa trừ các chương trình chiết khấu/quà tặng của chủ đầu tư
Phân khu Cát Tường tọa lạc tại khu vực cửa ngõ phía Đông của Vinhomes Global Gate, sở hữu lợi thế kết nối vượt trội khi tiếp giáp trực tiếp hai trục giao thông trọng điểm là đường Trường Sa và tuyến nội khu TP2. Trong đó, đường Trường Sa với mặt cắt 72m thuộc trục Quốc lộ 5A, kết nối nhanh qua cầu Đông Trù tới khu vực Long Biên, Gia Lâm; còn tuyến TP2 liên thông cầu Tứ Liên, giúp rút ngắn thời gian di chuyển về các quận trung tâm như Hoàn Kiếm và Tây Hồ.
Không chỉ nổi bật về hạ tầng, Phân khu Cát Tường còn hưởng lợi trực tiếp từ hệ sinh thái thương mại, dịch vụ khi nằm đối diện khu triển lãm quốc gia, cụm khách sạn 5 sao và khối văn phòng hạng A. Đồng thời, việc ôm trọn Vincom Mega Mall giúp khu vực này trở thành tâm điểm giao thương và giải trí của toàn đô thị. Với nền tảng vị trí và quy hoạch như vậy, Phân khu Cát Tường được xem là lõi kinh doanh sôi động, phù hợp triển khai đa dạng mô hình thương mại và gia tăng giá trị khai thác cho chủ sở hữu.


Phân khu Cát Tường được quy hoạch với 100% sản phẩm là nhà liền kề, phát triển theo phong cách kiến trúc Đông Dương đặc trưng. Đây là ngôn ngữ thiết kế đã được kiểm chứng tại nhiều khu đô thị của Vingroup như Vinhomes Ocean Park hay Vinhomes Riverside The Harmony. Điểm nhận diện của kiến trúc này nằm ở sự kết hợp hài hòa giữa hình khối gọn gàng, gam trắng thanh lịch mang hơi hướng Pháp, cùng hệ cửa sổ rộng và mái ngói dốc nhẹ đặc trưng của kiến trúc Việt, tái hiện rõ nét tinh thần biệt thự Đông Dương đầu thế kỷ XX.

Tinh thần Đông Dương tiếp tục được thể hiện rõ qua hệ thống cảnh quan với hai công viên chủ đề Indochine Park và Tropical Oasis Park, nơi quy tụ các khu vườn cây xanh, tiểu cảnh, bể bơi ngoài trời, sân thể thao và các điểm nhấn nghệ thuật mang đậm bản sắc Á Đông. Tổng thể không gian của Phân khu Cát Tường tạo nên sự giao thoa rõ nét giữa yếu tố phương Đông và phương Tây, mang lại trải nghiệm sống vừa đẳng cấp vừa giàu bản sắc. Đồng thời, nhờ vị trí nằm kề các trục thương mại sầm uất, khu vực này cũng mở ra dư địa lớn cho hoạt động kinh doanh.

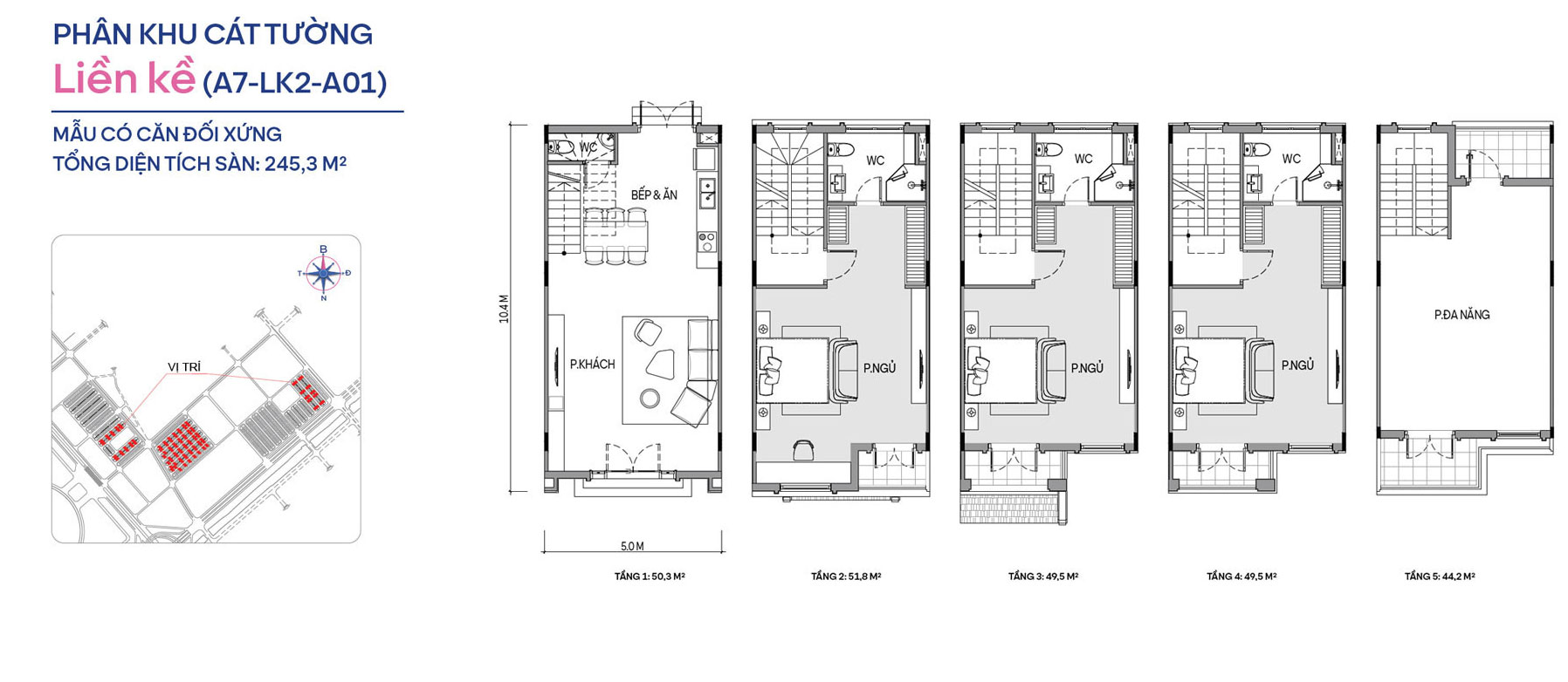
Khác với hai phân khu Tinh Hoa và Thịnh Vượng, Phân khu Cát Tường tập trung hoàn toàn vào dòng sản phẩm liền kề. Tổng số có 1.548 căn, diện tích đất dao động từ 62,5 – 220,1 m², mật độ xây dựng khoảng 84%, cao 5 tầng, phân bổ trên toàn bộ các tuyến đường nội khu. Sản phẩm được chia thành hai nhóm chính: liền kề tiêu chuẩn (chiếm khoảng 95%) với diện tích từ 62,5 – 90 m² và liền kề góc (chiếm khoảng 5%) với diện tích từ 85,2 – 220,1 m².
Nhà liền kề tại Phân khu Cát Tường còn được định danh là nhà phố hoặc shophouse nhờ khả năng khai thác linh hoạt, vừa phục vụ nhu cầu ở, vừa tối ưu cho kinh doanh. So với các phân khu khác, giá trị thương mại tại đây được đánh giá cao hơn nhờ vị trí cửa ngõ, khả năng kết nối nhanh tới các cầu Tứ Liên, Đông Trù, cùng việc liền kề khu triển lãm quốc gia, khách sạn, văn phòng và tổ hợp Vincom Mega Mall – những yếu tố đảm bảo lưu lượng khách và tiềm năng khai thác lâu dài..
